玄関に何となくつくってしまう「靴入れ」。
しっかり考える必要がある、という話し。
#
オシャレな人はどれくらい靴を持っているのかというと・・・20~25足くらい靴を持っています。
オシャレ家族、4人暮らしだと、靴の収納は80~100足くらいになります。
靴収納は普通の玄関になかなか収まりません。

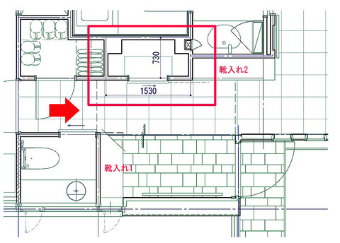
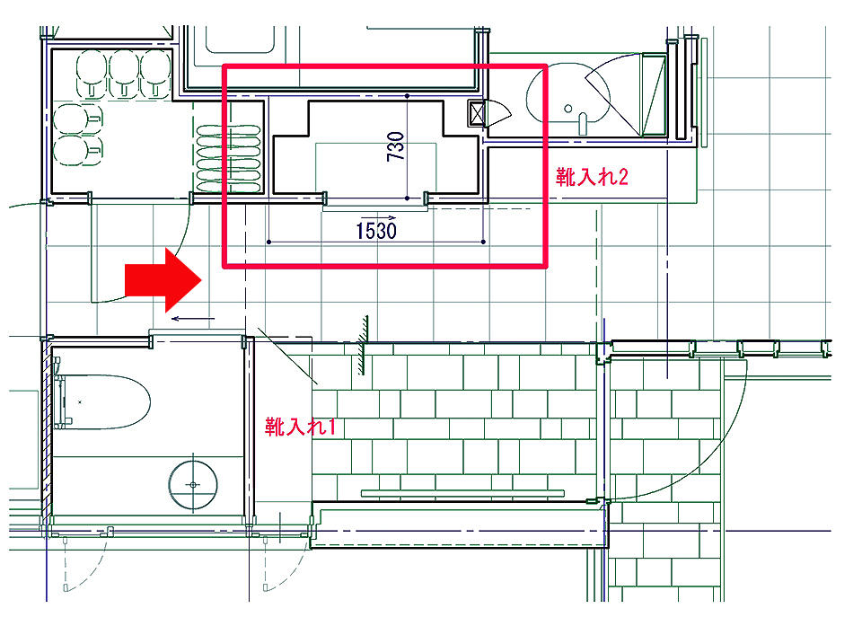
上の平面図では日常的に使う「靴入れ①」と「靴入れ②」がまずあります。
これだけでは足りないのでシューズクローゼット(赤枠)があります。
面積はタタミ1枚くらいの広さ。ここに約90足が収納できます。
下図はこの部屋の展開図。(設計には展開図という図面があるのです。)
いちばん下段はブーツを収納します。

靴入れ①②も含め、全体で考えると、この家の靴収納は約150足です。
#
下の写真は平面図の赤矢印から撮ったもの。
左のドアがシューズクローゼットのドアです。

靴入れは玄関に安易に配置してしまいがち。
私の場合も、何回も靴収納が足りなくて・・・、最近やっと満足に収納できるようになりました。
1人・・・20足以上が目標かなあ。
しっかり考える必要がある、という話し。
#
オシャレな人はどれくらい靴を持っているのかというと・・・20~25足くらい靴を持っています。
オシャレ家族、4人暮らしだと、靴の収納は80~100足くらいになります。
靴収納は普通の玄関になかなか収まりません。

上の平面図では日常的に使う「靴入れ①」と「靴入れ②」がまずあります。
これだけでは足りないのでシューズクローゼット(赤枠)があります。
面積はタタミ1枚くらいの広さ。ここに約90足が収納できます。
下図はこの部屋の展開図。(設計には展開図という図面があるのです。)
いちばん下段はブーツを収納します。

靴入れ①②も含め、全体で考えると、この家の靴収納は約150足です。
#
下の写真は平面図の赤矢印から撮ったもの。
左のドアがシューズクローゼットのドアです。

靴入れは玄関に安易に配置してしまいがち。
私の場合も、何回も靴収納が足りなくて・・・、最近やっと満足に収納できるようになりました。
1人・・・20足以上が目標かなあ。
コメント