洗濯干し場の話し。
設計のときしっかり考えないことの一つです。
が、ちゃんと考えると、間取りの中に干し場はつくることができる。
#
昨今、日中不在な家は多い。
雨が降ったらどうする?、という共働き住宅の設計を行なった。
そのときから、洗濯物をどこに干す?・・・を考えることになった。
#
写真は少しゆとりのあった住宅での洗濯室と干し場。

物干し室は喜ばれています。
雨を心配しなくてもいい。
花粉症の人にいい。
ガチャガチャにできる裏舞台があるのでいい。
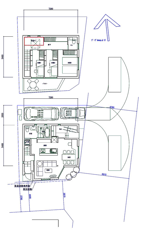
こちらは延床面積87m2の住宅案に設けた物干し場。
小さな家だけど2階の廊下に物干し場をつくった。
独立した部屋ではなく、廊下をふくらませてつくった。
(階段の位置にミスがあります。そのうちに修正します。)

設計のときしっかり考えないことの一つです。
が、ちゃんと考えると、間取りの中に干し場はつくることができる。
#
昨今、日中不在な家は多い。
雨が降ったらどうする?、という共働き住宅の設計を行なった。
そのときから、洗濯物をどこに干す?・・・を考えることになった。
#
写真は少しゆとりのあった住宅での洗濯室と干し場。

物干し室は喜ばれています。
雨を心配しなくてもいい。
花粉症の人にいい。
ガチャガチャにできる裏舞台があるのでいい。
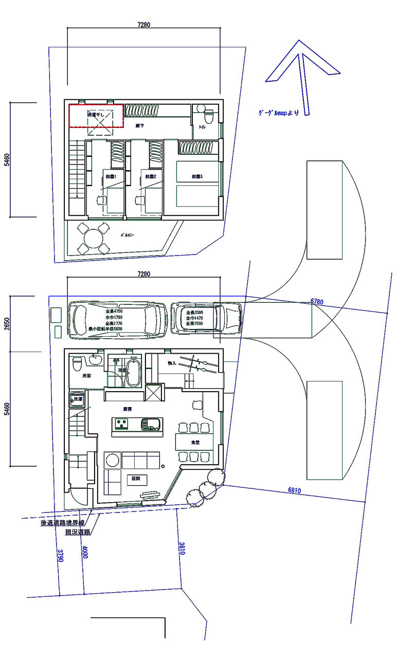
こちらは延床面積87m2の住宅案に設けた物干し場。
小さな家だけど2階の廊下に物干し場をつくった。
独立した部屋ではなく、廊下をふくらませてつくった。
(階段の位置にミスがあります。そのうちに修正します。)

コメント