日本の間取り図は「北を上」にして描く、、、という話しを何回か載せました。
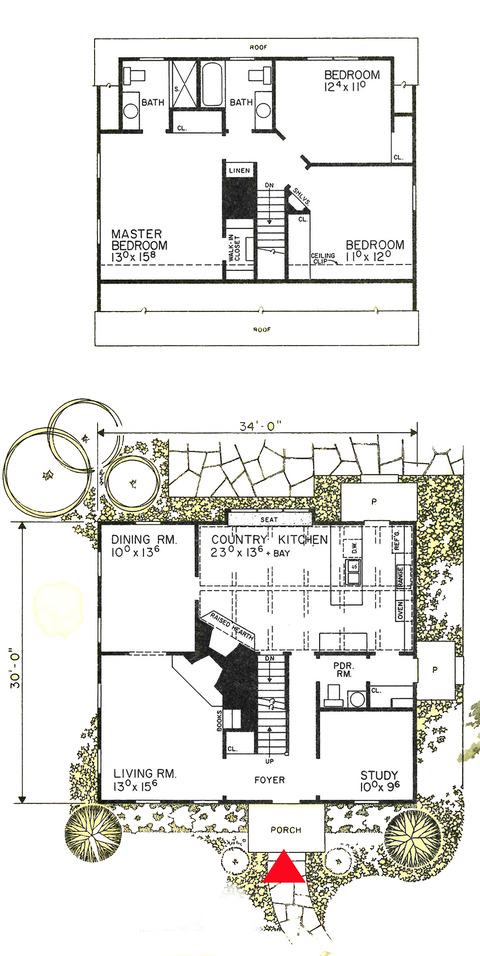
ところが、アメリカ住宅の間取り図は「玄関が下」という、方位に関係のない描き方なんです。
家は将来、転売しなければならない。(アメリカでは人生の節目に移転をし、家族に見合った家に住み替える。)
家を転売商品として考えたとき、正面性(家のデザイン)が重要だから、なのではないかと思います。

赤いところが玄関です。
透視図は玄関側から描かれています。
玄関壁位置は真っすぐ、日本だったらここは庇も真っすぐにするところを、わざわざ柱を4本立て、屋根を前に迫り出し、正面デザインを鮮明にしています。
何でもないようですが、考えられています。
#


日本だったらこの住宅は2階建てです。
ところが、絵をみると外観は、屋根急こう配の(ふくらんだ)平屋に見える。
平屋風の正面性にかなりこだわっています。
そのため2階は玄関側に窓が設けられないという犠牲まで払っている。
玄関と反対側の2階(水回り+1部屋)はおそらくドーマー。
そこまでして平屋風にこだわる。
#


日本の感覚から言うと、透視図の面が南面、、、という風に錯覚しがちですが、この面が道路に面している。
方位に関係がない、玄関のある面が道路側。
正面性とは家のデザインを考えるってことです。
道路から見えている家の外観、すべての家が正面性なんですから、格好のよい家が生まれ、まちなみも美しくなる。
デザインの良い家は、売りやすい。
皆が美しさに競い合っている。
正面性を考えるのには玄関を下に描いた方が家はイメージしやすい。
つまり、アメリカ住宅は方位に無関係。
プロフィールはこちら。
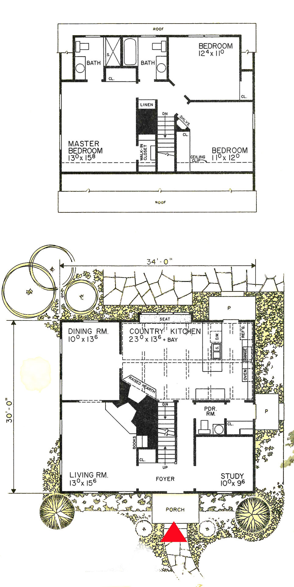
ところが、アメリカ住宅の間取り図は「玄関が下」という、方位に関係のない描き方なんです。
家は将来、転売しなければならない。(アメリカでは人生の節目に移転をし、家族に見合った家に住み替える。)
家を転売商品として考えたとき、正面性(家のデザイン)が重要だから、なのではないかと思います。

赤いところが玄関です。
透視図は玄関側から描かれています。
玄関壁位置は真っすぐ、日本だったらここは庇も真っすぐにするところを、わざわざ柱を4本立て、屋根を前に迫り出し、正面デザインを鮮明にしています。
何でもないようですが、考えられています。
#


日本だったらこの住宅は2階建てです。
ところが、絵をみると外観は、屋根急こう配の(ふくらんだ)平屋に見える。
平屋風の正面性にかなりこだわっています。
そのため2階は玄関側に窓が設けられないという犠牲まで払っている。
玄関と反対側の2階(水回り+1部屋)はおそらくドーマー。
そこまでして平屋風にこだわる。
#


日本の感覚から言うと、透視図の面が南面、、、という風に錯覚しがちですが、この面が道路に面している。
方位に関係がない、玄関のある面が道路側。
正面性とは家のデザインを考えるってことです。
道路から見えている家の外観、すべての家が正面性なんですから、格好のよい家が生まれ、まちなみも美しくなる。
デザインの良い家は、売りやすい。
皆が美しさに競い合っている。
正面性を考えるのには玄関を下に描いた方が家はイメージしやすい。
つまり、アメリカ住宅は方位に無関係。
プロフィールはこちら。
コメント