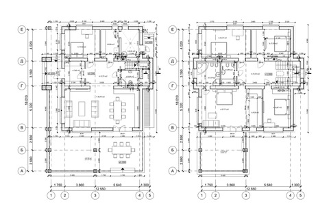
素人の建て主さんは図面がいい加減なので妄想を抱いてしまう、と前回書いた。
そう言えば、JW-CADは無料で図面が描けるソフトだ。
建築業界ではプロでも1/3くらいの人が使っているのではないかと思えるほど、本格的なCAD。
建築好きな建て主さんなら、使わない手はないと思う。きわめて正確に描ける。

多くの人が使っているので、どのような有料CADでもJW-CADとの互換性がある。(データのやり取りが可能だという意味。)
それほどに、JW-CADは無視できない存在である。
#
建て主さんがつくったCADデーターを建設会社や設計者に渡しても、問題がないだろう。
JW-CADで検索すると簡単にダウンロードできる。
有名CADなので使い方HELPもネット上にあふれている。
作者プロフィールはこちら
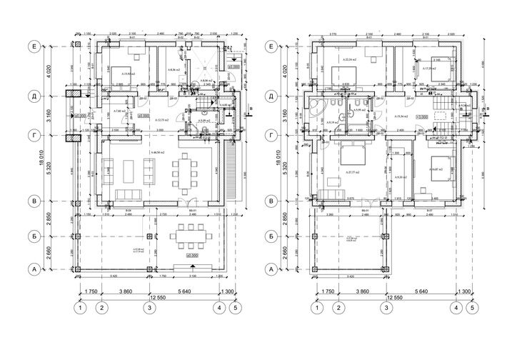
そう言えば、JW-CADは無料で図面が描けるソフトだ。
建築業界ではプロでも1/3くらいの人が使っているのではないかと思えるほど、本格的なCAD。
建築好きな建て主さんなら、使わない手はないと思う。きわめて正確に描ける。

多くの人が使っているので、どのような有料CADでもJW-CADとの互換性がある。(データのやり取りが可能だという意味。)
それほどに、JW-CADは無視できない存在である。
#
建て主さんがつくったCADデーターを建設会社や設計者に渡しても、問題がないだろう。
JW-CADで検索すると簡単にダウンロードできる。
有名CADなので使い方HELPもネット上にあふれている。
作者プロフィールはこちら
コメント