ことばの建築
初めての人が読むところはココ!
サイトマップ ーコレIRUー
プロフィール
サイトマップ ーアニメーションー
2023年12月
2023年12月31日
案のおもしろみ
専門家向け
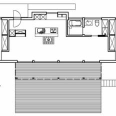
別荘の間取り 6 / 間取りを回転させる
2023年12月30日
ことば建築
案のおもしろみ
別荘の間取り 5 / 家具を配置する
2023年12月29日
ことば建築
案のおもしろみ
別荘の間取り 4 / 曲げる
2023年12月25日
ことば建築
案のおもしろみ
別荘の間取り 3 / 視線を飛ばす
2023年12月15日
雑
専門家向け
麻布台ヒルズのヤツデ
2023年12月07日
案のおもしろみ
ことば建築
別荘の間取り 2 / 楽しい家事労働
2023年12月04日
案のおもしろみ
専門家向け
別荘の間取り 1 / 体感度