視線を飛ばすという中に、間取りを曲げるという方法もある。
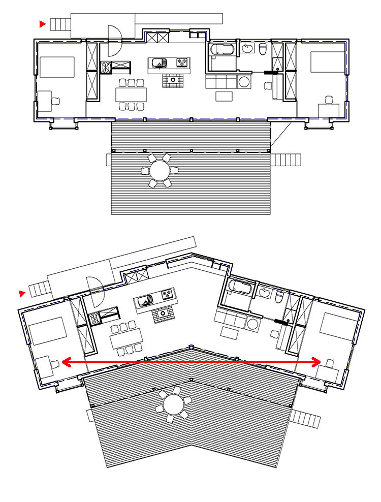
上の間取りが今回シリーズで採り上げている間取り。
下の間取りは、これを30度分、曲げたもの。

急に躍動感が生まれ、ワクワク空間ができる。
窓から向こうを見ると、自分の家が見えるというのは、楽しい。
#
下の写真。
私はこのような窓から見える景色が好きだ。
乗っている自分の列車が見える、風景。
曲がった間取りはこの景色に近い。

#
曲面にするとさらに視線に影響がでる。

室内の視線は遠くに飛ぶから、曲がった先が、、、何故か楽しい。
#
こちらはある町のまちなみ(日本にもこんな町がある)。
道が曲線だから、歩いていると先の風景が次から次へと見えてきて、、、楽しい。
直線道路とは異なった趣きが生まれている。

これを応用したのがショッピングモールだ。


上図はイオンモールむさし村山店の平面図。
下図はイオンモール東久留米店。
(両図とも店舗のフロアーガイドから転載)
矢印の中央通りが曲がっているので、次々と現れるショップが楽しいのだ。
#
曲面間取りはワクワク感をつくり出す。
上の間取りが今回シリーズで採り上げている間取り。
下の間取りは、これを30度分、曲げたもの。

急に躍動感が生まれ、ワクワク空間ができる。
窓から向こうを見ると、自分の家が見えるというのは、楽しい。
#
下の写真。
私はこのような窓から見える景色が好きだ。
乗っている自分の列車が見える、風景。
曲がった間取りはこの景色に近い。

#
曲面にするとさらに視線に影響がでる。

室内の視線は遠くに飛ぶから、曲がった先が、、、何故か楽しい。
#
こちらはある町のまちなみ(日本にもこんな町がある)。
道が曲線だから、歩いていると先の風景が次から次へと見えてきて、、、楽しい。
直線道路とは異なった趣きが生まれている。

これを応用したのがショッピングモールだ。


上図はイオンモールむさし村山店の平面図。
下図はイオンモール東久留米店。
(両図とも店舗のフロアーガイドから転載)
矢印の中央通りが曲がっているので、次々と現れるショップが楽しいのだ。
#
曲面間取りはワクワク感をつくり出す。
コメント