家具を配置せずに、間取りを考える人がいる。
建て主さんにも多いし、設計者にも多い。
これは避けるべきだ。
#
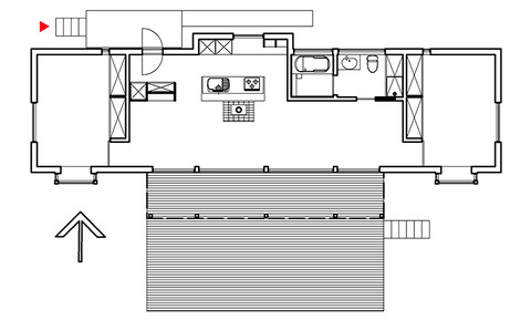
家具を配置していない図面。

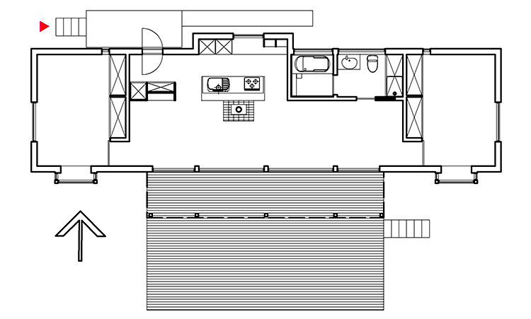
家具を配置した図面。

配置することで間取りはしっかりする。
イメージもつくりやすくなる。
作者プロフィールはこちら
プロフィール2
プロフィール3
建て主さんにも多いし、設計者にも多い。
これは避けるべきだ。
#
家具を配置していない図面。

家具を配置した図面。

配置することで間取りはしっかりする。
イメージもつくりやすくなる。
作者プロフィールはこちら
プロフィール2
プロフィール3
コメント